
项目名称:至臻轩足疗养生会所
项目地点:河北香河
建筑面积:880平米
设计机构:北京裕邦装饰工程有限公司
主案设计:张玉凤
参与设计:田俭 李菁菁
项目造价:200万
主要材料:木质面 壁画 壁纸 瓷砖
至臻轩足疗养生会所系女子SPA与男士足浴综合性空间,运用现代风格与中式元素相结合的设计。本案传达的是雅致、舒适、自然的中式风。会所装修设计的重点也在于贴合需求,贴合消费环境,提升人性化使用功能。

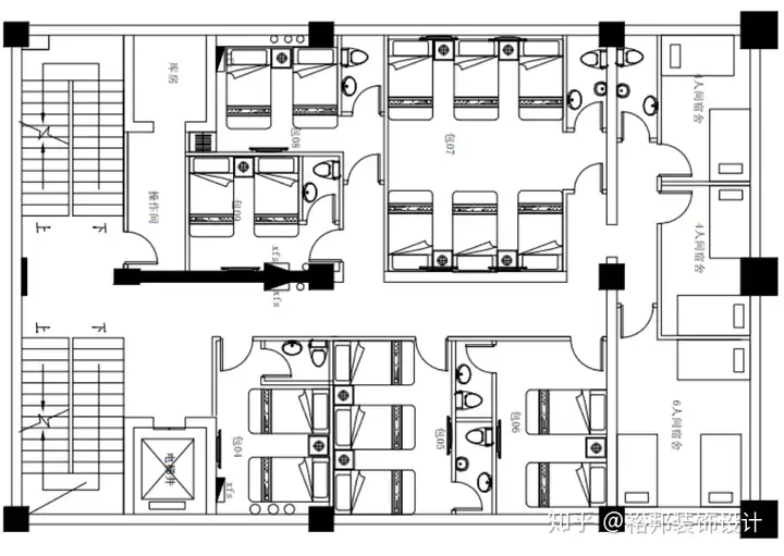
△空间1F布置图

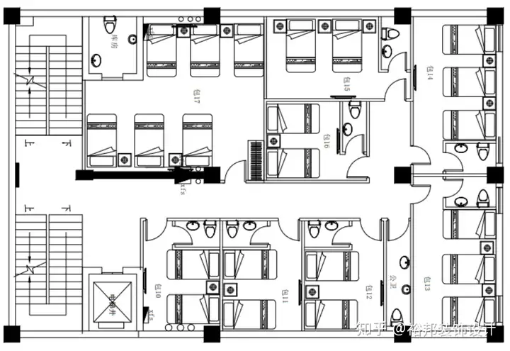
△空间2F布置图

△空间3F布置图

△空间4F布置图
会所设计足疗房17间,其中二人间10间、三人间5间、六人间2间,SPA房8间,会所共25间房间。会所空间按照私人空间,公共空间的功能性进行设计,将会所整体布局分隔开来,既保证了客人的隐私,同时又有足够开放的公共空间。

△门头
会所门口的设计采用现代的设计方法,简单朴素,同时方正的线条以及巨大的玻璃窗户使得空间具有现代时尚。在此展示空间中的色彩则以黑白灰作为基调,简单大气。

△大厅
设计师使用金色,红色和黑色进行大厅的配色设计,典雅尊贵,以线条勾底蕴,整体装饰元素上,摒弃用传统的古典风格来突显会所的尊贵做法,采用了新中式风格的设计手法。看似简洁的线条,尊贵典雅中蕴藏着博大精深。站在这样的空间中任何人都会本能的静下来,举止随着空间的氛围变得优雅。

△二层走廊
二层走廊的主色调是代表奢华的金色,本案设计金色则是轻奢风。充满对品质、品味和美的追求。

△三层走廊
三层走廊的墙面采用砖纹壁纸,实木色的木质面材料拼叠搭配,与形式丰富、意境幽美的花格,给人一种瓦砌花墙的古朴院落景致,大理石坐台与雕像组合也使空间仿若院落景致的雅致一角。

△四层走廊
四层空间主要以SPA房间为主,走廊采用金色的灯光渲染出尊贵的格调,走廊墙壁的木质面、镂空栅格与红色的壁面装饰相结合,再搭配古朴原始的壁面装饰,使空间古朴大气。





△二人间
二人间具有五种设计,都具有新中式的设计风格,将现代元素与传统元素相结合,使用中国传统的陈设装饰例如古典木质窗格,山水、梅花的壁面壁画、古典的方形灯、字画以及古典花瓶来体现中式风格,这也陈设也都使整体空间呈现出自然、古朴的氛围,既体现其视觉上的美感,又具有实用性。而空间中也使用了诸如摩登风格的装饰,使空间中西交融,也具有现代感。



△三人间
三人间也将现代元素与传统元素相结合,以现代人的观点体现出不同于传统风格的设计,木门,木柜与木梁和方形灯都为空间营造出中国风,素雅的山水、花鸟的壁画与木质装饰结合,使空间素雅舒适,具有强烈的古典气息。空间内明快而活泼的现代设计元素也稍微冲淡了强烈的中式风格,使空间的中式元素更加典雅、具有灵动性。

△六人间








△SPA房间
SPA房间采用多样的设计,既有传统元素浓厚的古典风格,也有摩登明亮的现代风格和古典与现代相交融的新中式风格。中式与新中式的空间尽可能多的木质透空屏风,保持最多的开敞空间和最小的设计干预,选用素朴的材质,以及中国特色的门窗装饰,传达对自然的信仰,给人悠远宁静的韵味。
相关标签: